PROPERTY INFORMATION
スフィアタワー天王洲
| 物件名 | スフィアタワー天王洲 |
|---|---|
| 所在地 |
2丁目
2-8
MAP
|
| 交通 |
徒歩1分
徒歩3分
|
| 竣工年月 | 1993年4月 |
| リニューアル | --- |
| 構造・規模 | 鉄骨(S造) 地上:28階、地下:2階 |
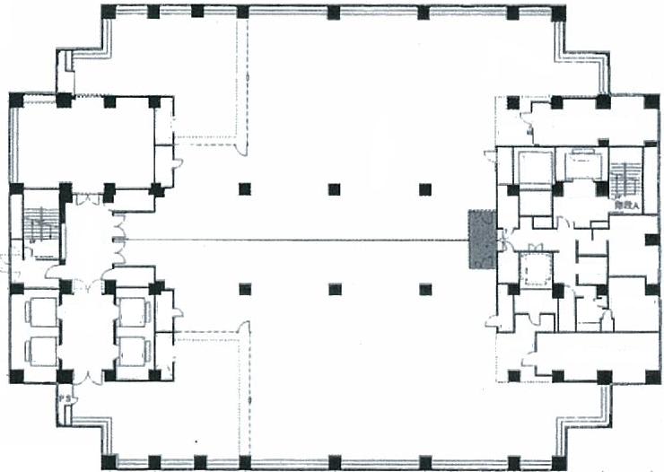
| 基準階面積(坪) | 326.45坪 |
| 天井高 | 2650mm |
| 空調 | セントラル |
| エレベーター | 8 基 |
| 駐車場 | 有り |
| 耐震性能 | --- |
| 取引態様 | 媒介 |
1 / 10
google map
ハザードマップを見る
物件紹介
スフィアタワー天王洲は東京都品川区東品川2丁目に所在しており、基準階面積は 326.45 坪、延床面積は 13,323.91 坪の、大型オフィスビルです。東京モノレール羽田の天王洲アイル駅に直結しており、雨の日でも濡れずにアクセスが可能です。1993年4月竣工で、建物の構造は、鉄骨(S造)となっており、地上28階・地下2階建です。基準階オフィスの空調方式はセントラル、天井高は2650mm、床仕様はOA床、エレベーターは8基設置されております。
このエリアは、運河沿いに位置し、ウォーターフロントの景観が楽しめる点が魅力です。また、商業施設やレストランも多く、ビジネスとレジャーの両方を楽しむことができます。
物件情報に関する表示ルールについては当サイトのご利用規約をお読みください。
ご利用規約CONTACT US お問い合わせ
オフィスをお探しのみなさま
掲載中の物件以外にも、多数物件を取り扱っております。お電話またはお問い合わせフォームからお気軽にお問い合わせください。



