1. トップ
  2. エリアから探す
  3. 愛知
  4. 名古屋市
  5. 名古屋市東区
  6. 名古屋パナソニックビル

PROPERTY INFORMATION

お問い合わせ

名古屋パナソニックビル

物件の基本情報
物件名 名古屋パナソニックビル
所在地 MAP
交通
竣工年月 1964年6月
リニューアル 2006年3月
構造・規模 鉄骨鉄筋コンクリート(SRC造)
地上:8階、地下:1階
基準階面積(坪) ---
天井高 2500mm
空調 ---
エレベーター 2 基
駐車場 26 台
耐震性能 ---
取引態様 媒介

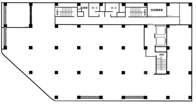
フロア情報

選択 階数 面積 賃料(共益費込) 入居時期 検討リスト
7階 100坪
330.57㎡
相談 相談

物件情報に関する表示ルールについては当サイトのご利用規約をお読みください。

ご利用規約

CONTACT US お問い合わせ

オフィスをお探しのみなさま

掲載中の物件以外にも、多数物件を取り扱っております。お電話またはお問い合わせフォームからお気軽にお問い合わせください。

三菱地所リアルエステートサービス株式会社
ビル営業部

お問い合わせはお電話でも承ります。
お気軽にお問い合わせください。

受付時間 9:30 〜 17:30(平日)