PROPERTY INFORMATION
エトワール心斎橋
物件名 | エトワール心斎橋 |
---|---|
所在地 |
心斎橋筋1丁目
9-17
MAP
|
交通 |
徒歩1分
徒歩1分
|
竣工年月 | 2004年11月 |
リニューアル | --- |
構造・規模 | 鉄骨(S造) 鉄骨鉄筋コンクリート(SRC造) 地上:9階、地下:1階 |
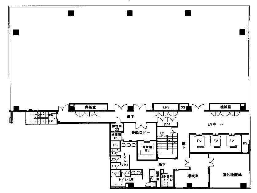
基準階面積(坪) | 169.59坪 |
天井高 | 2700mm |
空調 | 個別タイプ |
エレベーター | 3 基 |
駐車場 | 有り |
耐震性能 | --- |
取引態様 | 媒介 |
1 / 10
google map
ハザードマップを見る
物件情報に関する表示ルールについては当サイトのご利用規約をお読みください。
ご利用規約CONTACT US お問い合わせ
オフィスをお探しのみなさま

掲載中の物件以外にも、多数物件を取り扱っております。お電話またはお問い合わせフォームからお気軽にお問い合わせください。