PROPERTY INFORMATION
三宮東ビル
| 物件名 | 三宮東ビル |
|---|---|
| 所在地 |
神戸市中央区
雲井通4丁目
1-2
MAP
|
| 交通 |
東海道本線
三ノ宮駅
徒歩6分
阪神電鉄本線
神戸三宮駅
徒歩7分
神戸高速鉄道東西線
神戸三宮駅
徒歩7分
神戸新交通
三宮駅
徒歩7分
|
| 竣工年月 | 1997年7月 |
| リニューアル | --- |
| 構造・規模 | 鉄筋コンクリート(RC造) 鉄骨鉄筋コンクリート(SRC造) 地上:8階、地下:2階 |
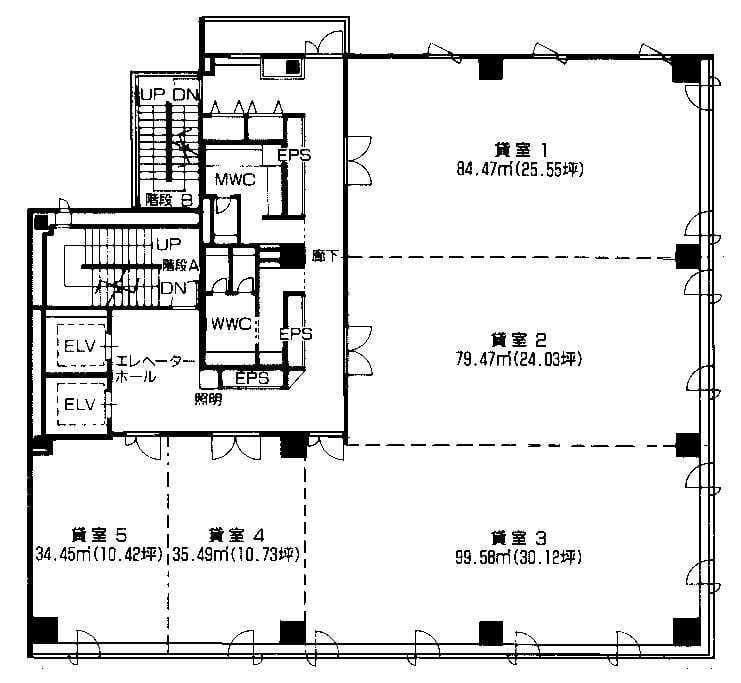
| 基準階面積(坪) | 100坪 |
| 天井高 | 2650mm |
| 空調 | 個別タイプ |
| エレベーター | 有り |
| 駐車場 | 有り |
| 耐震性能 | --- |
| 取引態様 | 媒介 |
1 / 10
google map
ハザードマップを見る
物件情報に関する表示ルールについては当サイトのご利用規約をお読みください。
ご利用規約CONTACT US お問い合わせ
オフィスをお探しのみなさま
掲載中の物件以外にも、多数物件を取り扱っております。お電話またはお問い合わせフォームからお気軽にお問い合わせください。



