PROPERTY INFORMATION
山陽ビル2号館
| 物件名 | 山陽ビル2号館 |
|---|---|
| 所在地 |
広島市中区
大手町5丁目
2-22
MAP
|
| 交通 |
広島電鉄宇品線
鷹野橋駅
徒歩3分
|
| 竣工年月 | 1991年6月 |
| リニューアル | --- |
| 構造・規模 | 鉄筋コンクリート(RC造) 地上:9階 |
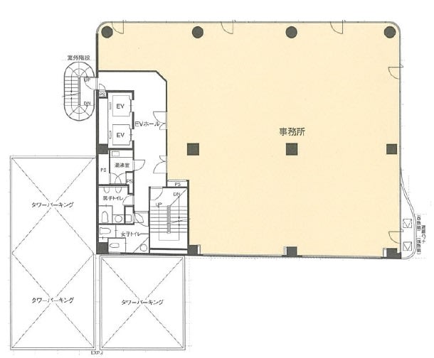
| 基準階面積(坪) | 81坪 |
| 天井高 | 2600mm |
| 空調 | 個別タイプ |
| エレベーター | 2 基 |
| 駐車場 | 59 台 |
| 耐震性能 | --- |
| 取引態様 | 媒介 |
1 / 10
google map
ハザードマップを見る
物件情報に関する表示ルールについては当サイトのご利用規約をお読みください。
ご利用規約CONTACT US お問い合わせ
オフィスをお探しのみなさま
掲載中の物件以外にも、多数物件を取り扱っております。お電話またはお問い合わせフォームからお気軽にお問い合わせください。



