FLOOR INFORMATION
大樹生命札幌大通ビル 1階
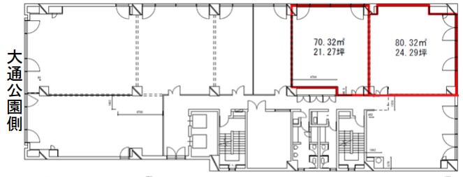
面積 | 56.79坪 187.74㎡ |
---|---|
賃料 (共益費込) | 相談 |
預託金 | 12 ヶ月 |
入居日 | 2025年12月20日 |
物件名 | 大樹生命札幌大通ビル |
---|---|
所在地 |
大通西6丁目
2-6
MAP
|
交通 |
徒歩2分
|
竣工年月 | 1988年8月 |
リニューアル | --- |
構造・規模 | 鉄骨鉄筋コンクリート(SRC造) 地上:9階、地下:2階 |
基準階面積(坪) | --- |
天井高 | 2500mm |
空調 | 個別タイプ |
エレベーター | 2 基 |
駐車場 | 有り |
耐震性能 | --- |
取引態様 | 媒介 |
1 / 10
google map
ハザードマップを見る
物件情報に関する表示ルールについては当サイトのご利用規約をお読みください。
ご利用規約CONTACT US お問い合わせ
オフィスをお探しのみなさま

掲載中の物件以外にも、多数物件を取り扱っております。お電話またはお問い合わせフォームからお気軽にお問い合わせください。