FLOOR INFORMATION
いちご大宮ビル 地下1階
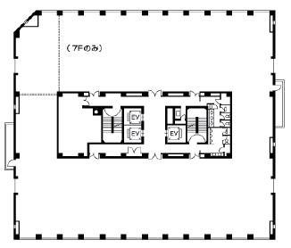
| 面積 | 89.98坪 297.45㎡ |
|---|---|
| 賃料 (共益費込) | 1,259,720 円 14,000 円/坪 |
| 預託金 | 相談 |
| 入居日 | 2026年3月 |
| 物件名 | いちご大宮ビル |
|---|---|
| 所在地 |
宮町2丁目
81
MAP
|
| 交通 |
徒歩8分
徒歩8分
徒歩8分
徒歩8分
徒歩8分
徒歩8分
|
| 竣工年月 | 1986年11月 |
| リニューアル | --- |
| 構造・規模 | 鉄筋コンクリート(RC造) 地上:7階、地下:1階 |
| 基準階面積(坪) | 273.18坪 |
| 天井高 | 2450mm |
| 空調 | セントラル+個別 |
| エレベーター | 3 基 |
| 駐車場 | 67 台 |
| 耐震性能 | --- |
| 取引態様 | 媒介 |
1 / 10
google map
ハザードマップを見る
物件情報に関する表示ルールについては当サイトのご利用規約をお読みください。
ご利用規約CONTACT US お問い合わせ
オフィスをお探しのみなさま
掲載中の物件以外にも、多数物件を取り扱っております。お電話またはお問い合わせフォームからお気軽にお問い合わせください。



