PROPERTY INFORMATION
平河町フロントビル
| 物件名 | 平河町フロントビル |
|---|---|
| 所在地 |
1丁目
3-13
MAP
|
| 交通 |
徒歩3分
徒歩4分
|
| 竣工年月 | 1988年3月 |
| リニューアル | --- |
| 構造・規模 | 鉄骨(S造) 鉄筋コンクリート(RC造) 地上:8階、地下:1階 |
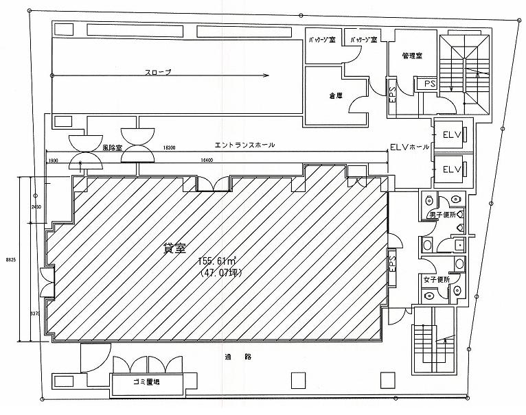
| 基準階面積(坪) | 104.88坪 |
| 天井高 | 2690mm |
| 空調 | 個別タイプ |
| エレベーター | 2 基 |
| 駐車場 | 9 台 |
| 耐震性能 | --- |
| 取引態様 | 媒介 |
1 / 10
google map
ハザードマップを見る
物件紹介
平河町フロントビルは東京都千代田区平河町1丁目に所在しており、基準階面積は 104.88 坪、延床面積は 913.97坪の、オフィスビルです。東京地下鉄半蔵門線の半蔵門駅からは徒歩3分で、交通利便性に優れています。1988年3月竣工で、建物の構造は、鉄骨(S造)・鉄筋コンクリート(RC造)となっており、地上8階・地下1階建です。基準階オフィスの空調方式は個別タイプ、天井高は2690mm、床仕様はOA床、エレベーターは2基設置されております。
このエリアは、歴史的な建物や公園が多く、落ち着いた雰囲気が特徴です。また、ビジネス街としても発展しており、多くの企業がオフィスを構えています。
物件情報に関する表示ルールについては当サイトのご利用規約をお読みください。
ご利用規約CONTACT US お問い合わせ
オフィスをお探しのみなさま
掲載中の物件以外にも、多数物件を取り扱っております。お電話またはお問い合わせフォームからお気軽にお問い合わせください。



