PROPERTY INFORMATION
神田プラザビル
| 物件名 | 神田プラザビル |
|---|---|
| 所在地 |
13
MAP
|
| 交通 |
徒歩4分
徒歩3分
徒歩5分
|
| 竣工年月 | 1962年9月 |
| リニューアル | 2022年10月 |
| 構造・規模 | 地上:9階、地下:1階 |
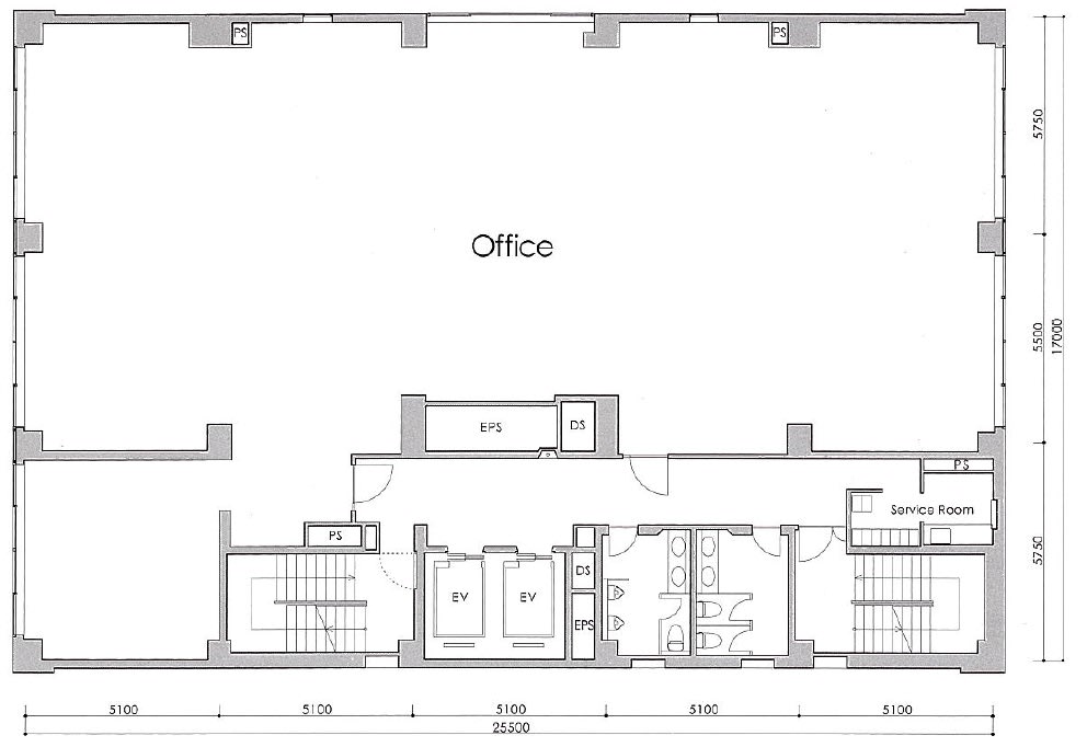
| 基準階面積(坪) | 116.76坪 |
| 天井高 | 2650mm |
| 空調 | 個別タイプ |
| エレベーター | 有り |
| 駐車場 | --- |
| 耐震性能 | --- |
| 取引態様 | 媒介 |
1 / 10
google map
ハザードマップを見る
物件紹介
神田プラザビルは東京都千代田区神田東松下町に所在しており、基準階面積は 116.76 坪、延床面積は 1,188.65坪の、オフィスビルです。都営新宿線の岩本町駅からは徒歩3分で、交通利便性に優れています。1962年9月竣工で、2022年にリニューアル済み、地上9階・地下1階建です。基準階オフィスの空調方式は個別タイプ、天井高は2650mm、床仕様はOA床です。
このエリアは、歴史的な建物と現代的なオフィスビルが共存しており、ビジネスと文化が融合した魅力的な地域です。飲食店やカフェも多く、働く人々にとって便利で快適な環境が整っています。
物件情報に関する表示ルールについては当サイトのご利用規約をお読みください。
ご利用規約CONTACT US お問い合わせ
オフィスをお探しのみなさま
掲載中の物件以外にも、多数物件を取り扱っております。お電話またはお問い合わせフォームからお気軽にお問い合わせください。



