FLOOR INFORMATION
WORK VILLA MYJ kanda 5階
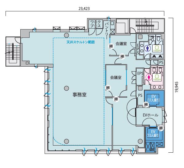
| 面積 | 95.69坪 316.33㎡ |
|---|---|
| 賃料 (共益費込) | 2,900,000 円 30,307 円/坪 |
| 預託金 | 6 ヶ月 |
| 入居日 | 即日 |
| 物件名 | WORK VILLA MYJ kanda |
|---|---|
| 所在地 |
1丁目
4番地(地番)
MAP
|
| 交通 |
徒歩1分
徒歩1分
徒歩2分
徒歩9分
徒歩8分
徒歩11分
|
| 竣工年月 | 2025年3月 |
| リニューアル | --- |
| 構造・規模 | 鉄骨(S造) 地上:14階、地下:1階 |
| 基準階面積(坪) | 95.69坪 |
| 天井高 | 2,500mm |
| 空調 | 個別タイプ |
| エレベーター | 1 基 |
| 駐車場 | 11 台 |
| 耐震性能 | --- |
| 取引態様 | 媒介 |
1 / 10
google map
ハザードマップを見る
物件情報に関する表示ルールについては当サイトのご利用規約をお読みください。
ご利用規約CONTACT US お問い合わせ
オフィスをお探しのみなさま
掲載中の物件以外にも、多数物件を取り扱っております。お電話またはお問い合わせフォームからお気軽にお問い合わせください。



