PROPERTY INFORMATION
日本橋浜町Kビル
| 物件名 | 日本橋浜町Kビル |
|---|---|
| 所在地 |
2丁目
62-6
MAP
|
| 交通 |
徒歩1分
徒歩4分
徒歩8分
|
| 竣工年月 | 1986年3月 |
| リニューアル | --- |
| 構造・規模 | 鉄骨鉄筋コンクリート(SRC造) 地上:14階、地下:1階 |
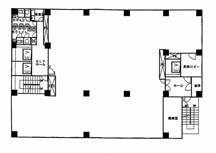
| 基準階面積(坪) | 153.55坪 |
| 天井高 | 2450mm |
| 空調 | セントラル |
| エレベーター | 2 基 |
| 駐車場 | 有り |
| 耐震性能 | --- |
| 取引態様 | 媒介 |
1 / 10
google map
ハザードマップを見る
物件紹介
日本橋浜町Kビルは東京都中央区日本橋浜町2丁目に所在しており、基準階面積は 153.55 坪、延床面積は 2,818.61坪の、オフィスビルです。都営新宿線の浜町駅からは徒歩1分で、交通利便性に優れています。1986年3月竣工で、建物の構造は、鉄骨鉄筋コンクリート(SRC造)となっており、地上14階・地下1階建です。基準階オフィスの空調方式はセントラル、天井高は2450mm、床仕様はOA床、エレベーターは2基設置されております。
このエリアは、歴史的な建物や文化施設が多く、観光地としても人気があります。さらに、飲食店や商業施設が充実しており、ビジネスパーソンにとっても便利な環境です。
物件情報に関する表示ルールについては当サイトのご利用規約をお読みください。
ご利用規約CONTACT US お問い合わせ
オフィスをお探しのみなさま
掲載中の物件以外にも、多数物件を取り扱っております。お電話またはお問い合わせフォームからお気軽にお問い合わせください。



