PROPERTY INFORMATION
斎藤ビルヂング
| 物件名 | 斎藤ビルヂング |
|---|---|
| 所在地 |
3丁目
14-6
MAP
|
| 交通 |
徒歩1分
徒歩3分
徒歩5分
徒歩5分
徒歩5分
|
| 竣工年月 | 1983年9月 |
| リニューアル | --- |
| 構造・規模 | 鉄筋コンクリート(RC造) 鉄骨鉄筋コンクリート(SRC造) 地上:9階、地下:1階 |
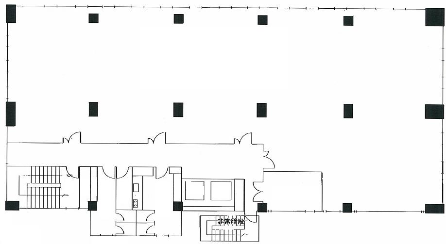
| 基準階面積(坪) | 147.62坪 |
| 天井高 | 2600mm |
| 空調 | セントラル+個別 |
| エレベーター | 2 基 |
| 駐車場 | 30 台 |
| 耐震性能 | --- |
| 取引態様 | 媒介 |
1 / 10
google map
ハザードマップを見る
物件紹介
斎藤ビルは東京都中央区京橋3丁目に所在しており、基準階面積は 147.62 坪、延床面積は 1,481.30坪の、オフィスビルです。都営浅草線の宝町駅からは徒歩1分で、交通利便性に優れています。1983年9月竣工で、建物の構造は、鉄筋コンクリート(RC造)・鉄骨鉄筋コンクリート(SRC造)で、地上9階・地下1階建です。基準階オフィスの空調方式はセントラル+個別、天井高は2600mm、床仕様はOA床、エレベーターは2基設置されております。
このエリアは、歴史的な建物と現代的なオフィスビルが共存しており、ビジネスと観光の両方に適した環境です。周辺には飲食店やカフェも多く、ランチタイムや仕事後のリフレッシュに最適な場所が揃っています。
物件情報に関する表示ルールについては当サイトのご利用規約をお読みください。
ご利用規約CONTACT US お問い合わせ
オフィスをお探しのみなさま
掲載中の物件以外にも、多数物件を取り扱っております。お電話またはお問い合わせフォームからお気軽にお問い合わせください。



