PROPERTY INFORMATION
PMO田町
| 物件名 | PMO田町 |
|---|---|
| 所在地 |
5丁目
31-17
MAP
|
| 交通 |
徒歩3分
徒歩2分
徒歩1分
|
| 竣工年月 | 2014年2月 |
| リニューアル | --- |
| 構造・規模 | 鉄骨鉄筋コンクリート(SRC造) 地上:12階、地下:1階 |
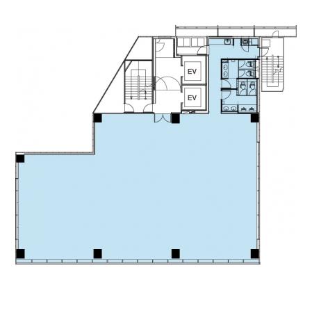
| 基準階面積(坪) | 110.54坪 |
| 天井高 | 2800mm |
| 空調 | 個別タイプ |
| エレベーター | 1 基 |
| 駐車場 | 16 台 |
| 耐震性能 | --- |
| 取引態様 | 媒介 |
1 / 10
google map
ハザードマップを見る
物件紹介
PMO田町は東京都港区芝5丁目に所在しており、基準階面積は 110.54 坪、延床面積は 1,623.16坪の、オフィスビルです。都営三田線の三田駅からは徒歩3分で、交通利便性に優れています。2014年2月竣工で、建物の構造は、鉄骨鉄筋コンクリート(SRC造)で、地上12階・地下1階建です。基準階オフィスの空調方式は個別タイプ、天井高は2800mm、床仕様はOA床、エレベーターは1基設置されております。
このエリアは、歴史的な建物や公園が多く、文化的な魅力に溢れています。また、飲食店や商業施設が充実しており、生活の利便性も高いです。
物件情報に関する表示ルールについては当サイトのご利用規約をお読みください。
ご利用規約CONTACT US お問い合わせ
オフィスをお探しのみなさま
掲載中の物件以外にも、多数物件を取り扱っております。お電話またはお問い合わせフォームからお気軽にお問い合わせください。



