PROPERTY INFORMATION
新宿センタービル
| 物件名 | 新宿センタービル |
|---|---|
| 所在地 |
1丁目
25-1
MAP
|
| 交通 |
徒歩3分
徒歩3分
徒歩3分
徒歩3分
徒歩3分
徒歩3分
|
| 竣工年月 | 1979年10月 |
| リニューアル | 2009年 |
| 構造・規模 | 鉄骨鉄筋コンクリート(SRC造) 地上:54階、地下:4階 |
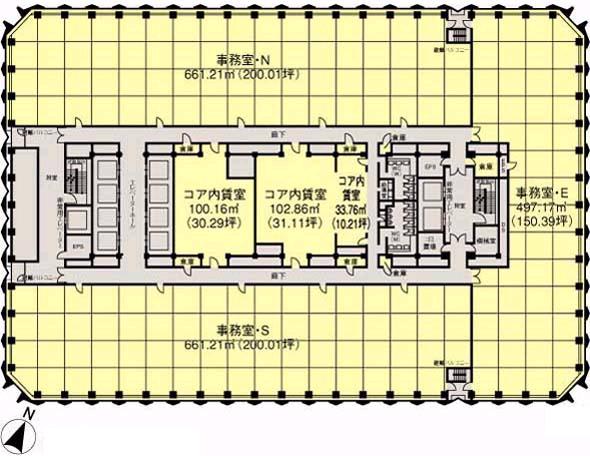
| 基準階面積(坪) | 622.05坪 |
| 天井高 | 2550mm |
| 空調 | セントラル |
| エレベーター | 33 基 |
| 駐車場 | 540 台 |
| 耐震性能 | 制震 |
| 取引態様 | 媒介 |
1 / 10
google map
ハザードマップを見る
物件紹介
新宿センタービルは東京都新宿区西新宿1丁目に所在しており、基準階面積は 622.05 坪、延床面積は 55,376.79 坪の、大型オフィスビルです。山手線の新宿駅からは徒歩3分で、交通利便性に優れています。1979年10月竣工で、2009年にリニューアル済み、建物の構造は、鉄骨鉄筋コンクリート(SRC造)で、地上54階・地下4階建です。基準階オフィスの空調方式はセントラル、天井高は2550mm、エレベーターは33基設置されており、制震構造が採用されています。
このエリアは、商業施設や飲食店が多く、ビジネスパーソンや観光客で賑わっています。また、緑豊かな公園も点在しており、都会の中でもリラックスできる環境が整っています。
物件情報に関する表示ルールについては当サイトのご利用規約をお読みください。
ご利用規約CONTACT US お問い合わせ
オフィスをお探しのみなさま
掲載中の物件以外にも、多数物件を取り扱っております。お電話またはお問い合わせフォームからお気軽にお問い合わせください。



