PROPERTY INFORMATION
京王新宿三丁目ビル
| 物件名 | 京王新宿三丁目ビル |
|---|---|
| 所在地 |
3丁目
1-24
MAP
|
| 交通 |
徒歩1分
徒歩1分
徒歩5分
徒歩1分
徒歩5分
|
| 竣工年月 | 1989年9月 |
| リニューアル | 2006年3月 |
| 構造・規模 | 鉄骨(S造) 鉄骨鉄筋コンクリート(SRC造) 地上:9階、地下:1階 |
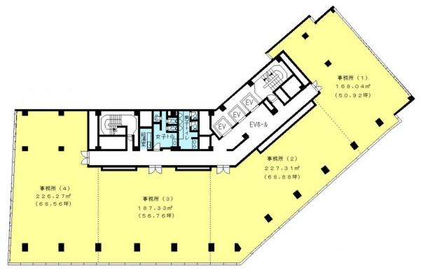
| 基準階面積(坪) | 245.13坪 |
| 天井高 | 2580mm |
| 空調 | 個別タイプ |
| エレベーター | 3 基 |
| 駐車場 | 3 台 |
| 耐震性能 | --- |
| 取引態様 | 媒介 |
1 / 10
google map
ハザードマップを見る
物件紹介
京王新宿三丁目ビルは東京都新宿区新宿3丁目に所在しており、基準階面積は 245.13 坪、延床面積は 2,928.38坪の、オフィスビルです。都営新宿線の新宿三丁目駅からは徒歩1分で、交通利便性に優れています。1989年9月竣工で、2006年3月にリニューアル済み、建物の構造は、鉄骨(S造)・鉄骨鉄筋コンクリート(SRC造)で、地上9階・地下1階建です。基準階オフィスの空調方式は個別タイプ、天井高は2580mm、床仕様はOA床、エレベーターは3基設置されております。
このエリアは、商業施設や飲食店が多く、ショッピングやグルメを楽しむのに最適な場所です。また、観光スポットも点在しており、訪れる人々に多様な楽しみを提供しています。
物件情報に関する表示ルールについては当サイトのご利用規約をお読みください。
ご利用規約CONTACT US お問い合わせ
オフィスをお探しのみなさま
掲載中の物件以外にも、多数物件を取り扱っております。お電話またはお問い合わせフォームからお気軽にお問い合わせください。



