PROPERTY INFORMATION
新宿御苑ビル
| 物件名 | 新宿御苑ビル |
|---|---|
| 所在地 |
2丁目
3-10
MAP
|
| 交通 |
徒歩3分
徒歩8分
徒歩3分
徒歩3分
|
| 竣工年月 | 1989年1月 |
| リニューアル | --- |
| 構造・規模 | 鉄骨鉄筋コンクリート(SRC造) 地上:10階、地下:2階 |
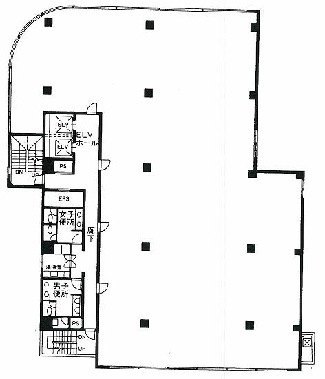
| 基準階面積(坪) | 163.06坪 |
| 天井高 | 2400mm |
| 空調 | 個別タイプ |
| エレベーター | 2 基 |
| 駐車場 | 43 台 |
| 耐震性能 | --- |
| 取引態様 | 媒介 |
1 / 10
google map
ハザードマップを見る
物件紹介
新宿御苑ビルは東京都新宿区新宿2丁目に所在しており、基準階面積は 163.06 坪、延床面積は 2,233.10坪の、オフィスビルです。東京地下鉄丸ノ内線の新宿三丁目駅からは徒歩3分で、交通利便性に優れています。1989年1月竣工で、建物の構造は、鉄骨鉄筋コンクリート(SRC造)となっており、地上10階・地下2階建です。基準階オフィスの空調方式は個別タイプ、天井高は2400mm、床仕様はOA床、エレベーターは2基設置されております。
このエリアは、商業施設や飲食店が豊富で、賑やかな雰囲気が特徴です。また、緑豊かな新宿御苑が近くにあり、自然を楽しむことができます。
物件情報に関する表示ルールについては当サイトのご利用規約をお読みください。
ご利用規約CONTACT US お問い合わせ
オフィスをお探しのみなさま
掲載中の物件以外にも、多数物件を取り扱っております。お電話またはお問い合わせフォームからお気軽にお問い合わせください。



