PROPERTY INFORMATION
野村不動産四谷ビル
| 物件名 | 野村不動産四谷ビル |
|---|---|
| 所在地 |
2丁目
12-1
MAP
|
| 交通 |
徒歩5分
徒歩7分
徒歩7分
徒歩7分
|
| 竣工年月 | 2009年5月 |
| リニューアル | --- |
| 構造・規模 | 鉄骨(S造) 鉄骨鉄筋コンクリート(SRC造) 地上:9階、地下:1階 |
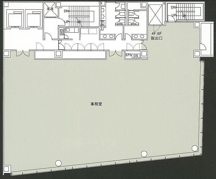
| 基準階面積(坪) | 113.83坪 |
| 天井高 | 2700mm |
| 空調 | 個別タイプ |
| エレベーター | 2 基 |
| 駐車場 | 14 台 |
| 耐震性能 | --- |
| 取引態様 | 媒介 |
1 / 10
google map
ハザードマップを見る
物件紹介
野村不動産四谷ビルは東京都新宿区四谷2丁目に所在しており、基準階面積は 113.83 坪、延床面積は 1,426.43坪の、オフィスビルです。東京地下鉄丸ノ内線の四谷三丁目駅から徒歩5分です。2009年5月竣工で、建物の構造は、鉄骨(S造)・鉄骨鉄筋コンクリート(SRC造)となっており、地上9階・地下1階建です。基準階オフィスの空調方式は個別タイプ、天井高は2700mm、床仕様はOA床、エレベーターは2基設置されております。
このエリアは、歴史的な建物や神社が点在し、文化的な魅力が豊富です。また、飲食店や商業施設が充実しており、生活の利便性が高いです。
物件情報に関する表示ルールについては当サイトのご利用規約をお読みください。
ご利用規約CONTACT US お問い合わせ
オフィスをお探しのみなさま
掲載中の物件以外にも、多数物件を取り扱っております。お電話またはお問い合わせフォームからお気軽にお問い合わせください。



