1. トップ
  2. エリアから探す
  3. 東京都
  4. 新宿区
  5. 市谷田町
  6. 市ヶ谷クロスプレイス

PROPERTY INFORMATION

お問い合わせ

市ヶ谷クロスプレイス

物件の基本情報
物件名 市ヶ谷クロスプレイス
所在地 MAP
交通
竣工年月 1991年5月
リニューアル ---
構造・規模 鉄骨鉄筋コンクリート(SRC造)
地上:9階、地下:2階
基準階面積(坪) ---
天井高 2600mm
空調 個別タイプ
エレベーター 1 基
駐車場 有り
耐震性能 ---
取引態様 媒介

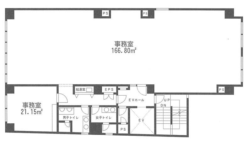
フロア情報

選択 階数 面積 賃料(共益費込) 入居時期 検討リスト
3階 50.82坪
168㎡
相談 2026年
7月1日

物件情報に関する表示ルールについては当サイトのご利用規約をお読みください。

ご利用規約

CONTACT US お問い合わせ

オフィスをお探しのみなさま

掲載中の物件以外にも、多数物件を取り扱っております。お電話またはお問い合わせフォームからお気軽にお問い合わせください。

三菱地所リアルエステートサービス株式会社
ビル営業部

お問い合わせはお電話でも承ります。
お気軽にお問い合わせください。

受付時間 9:30 〜 17:30(平日)