PROPERTY INFORMATION
新四curumuビル
| 物件名 | 新四curumuビル |
|---|---|
| 所在地 |
4丁目
2-23
MAP
|
| 交通 |
徒歩1分
徒歩1分
徒歩1分
|
| 竣工年月 | 2012年1月 |
| リニューアル | --- |
| 構造・規模 | 鉄骨(S造) 鉄筋コンクリート(RC造) 地上:11階、地下:2階 |
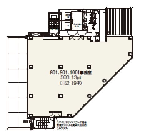
| 基準階面積(坪) | 197.71坪 |
| 天井高 | 2700mm |
| 空調 | 個別タイプ |
| エレベーター | 1 基 |
| 駐車場 | 32 台 |
| 耐震性能 | --- |
| 取引態様 | 媒介 |
1 / 10
google map
ハザードマップを見る
物件紹介
新四curumuビルは東京都新宿区新宿4丁目に所在しており、基準階面積は 197.71 坪、延床面積は 2,975.47坪の、オフィスビルです。東京地下鉄丸ノ内線の新宿駅からは徒歩1分で、交通利便性に優れています。2012年1月竣工で、建物の構造は、鉄骨(S造)・鉄筋コンクリート(RC造)で、地上11階・地下2階建です。基準階オフィスの空調方式は個別タイプ、天井高は2700mm、エレベーターは1基設置されております。
このエリアは、商業施設や飲食店が多く集まり、賑やかな雰囲気が特徴です。また、ビジネス街としても発展しており、多くの企業がオフィスを構えています。
物件情報に関する表示ルールについては当サイトのご利用規約をお読みください。
ご利用規約CONTACT US お問い合わせ
オフィスをお探しのみなさま
掲載中の物件以外にも、多数物件を取り扱っております。お電話またはお問い合わせフォームからお気軽にお問い合わせください。



