PROPERTY INFORMATION
市谷東ビル
| 物件名 | 市谷東ビル |
|---|---|
| 所在地 |
2丁目
1-3
MAP
|
| 交通 |
徒歩1分
徒歩1分
徒歩1分
東京都新宿線
市ヶ谷駅
徒歩1分
|
| 竣工年月 | 1992年3月 |
| リニューアル | --- |
| 構造・規模 | 鉄骨(S造) 鉄筋コンクリート(RC造) 鉄骨鉄筋コンクリート(SRC造) 地上:7階、地下:1階 |
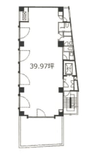
| 基準階面積(坪) | --- |
| 天井高 | --- |
| 空調 | 個別タイプ |
| エレベーター | 1 基 |
| 駐車場 | --- |
| 耐震性能 | --- |
| 取引態様 | 媒介 |
1 / 10
google map
ハザードマップを見る
物件情報に関する表示ルールについては当サイトのご利用規約をお読みください。
ご利用規約CONTACT US お問い合わせ
オフィスをお探しのみなさま
掲載中の物件以外にも、多数物件を取り扱っております。お電話またはお問い合わせフォームからお気軽にお問い合わせください。



