PROPERTY INFORMATION
PMO新宿御苑前
| 物件名 | PMO新宿御苑前 |
|---|---|
| 所在地 |
2丁目
1-12
MAP
|
| 交通 |
徒歩1分
|
| 竣工年月 | 2019年5月 |
| リニューアル | --- |
| 構造・規模 | 地上:9階、地下:3階 |
| 基準階面積(坪) | 104.44坪 |
| 天井高 | --- |
| 空調 | 個別タイプ |
| エレベーター | --- |
| 駐車場 | --- |
| 耐震性能 | --- |
| 取引態様 | 媒介 |
1 / 10
google map
ハザードマップを見る
物件紹介
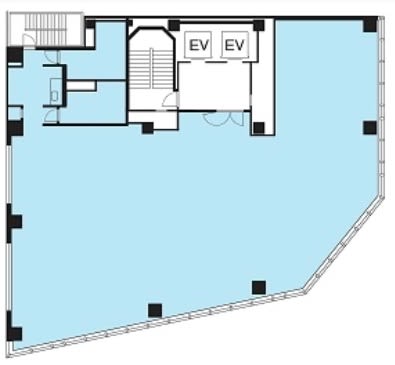
PMO新宿御苑前は東京都新宿区新宿2丁目に所在しており、基準階面積は 104.44 坪、延床面積は 1,323.14坪の、オフィスビルです。東京地下鉄丸ノ内線の新宿御苑前駅に直結しており、交通利便性に優れています。2019年5月竣工で、地上9階・地下3階建です。基準階オフィスの空調方式は個別タイプ、床仕様はOA床です。
このエリアは、商業施設や飲食店が豊富で、ビジネスや観光に便利な立地です。新宿御苑が近く、自然を感じながらリラックスできる環境が整っています。
物件情報に関する表示ルールについては当サイトのご利用規約をお読みください。
ご利用規約CONTACT US お問い合わせ
オフィスをお探しのみなさま
掲載中の物件以外にも、多数物件を取り扱っております。お電話またはお問い合わせフォームからお気軽にお問い合わせください。



