PROPERTY INFORMATION
モドマルシェ渋谷桜丘ビル
物件名 | モドマルシェ渋谷桜丘ビル |
---|---|
所在地 |
10-4
MAP
|
交通 |
徒歩8分
徒歩8分
徒歩8分
徒歩8分
徒歩8分
徒歩9分
|
竣工年月 | 2008年6月 |
リニューアル | --- |
構造・規模 | 鉄筋コンクリート(RC造) 地上:8階、地下:1階 |
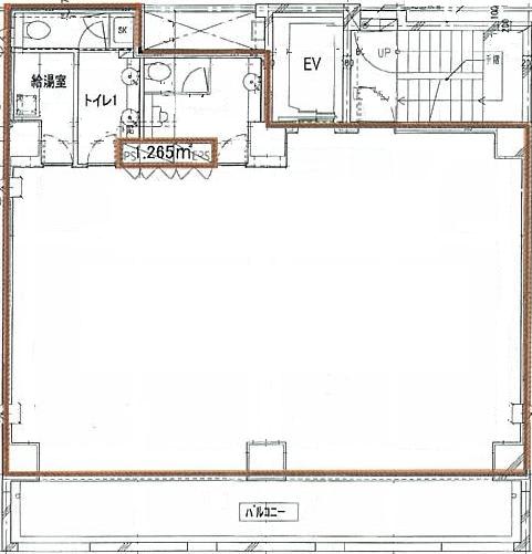
基準階面積(坪) | 33.71坪 |
天井高 | 3350mm |
空調 | 個別タイプ |
エレベーター | 1 基 |
駐車場 | --- |
耐震性能 | --- |
取引態様 | 媒介 |
1 / 10
google map
ハザードマップを見る
物件情報に関する表示ルールについては当サイトのご利用規約をお読みください。
ご利用規約CONTACT US お問い合わせ
オフィスをお探しのみなさま

掲載中の物件以外にも、多数物件を取り扱っております。お電話またはお問い合わせフォームからお気軽にお問い合わせください。