FLOOR INFORMATION
四条SETビル 4階
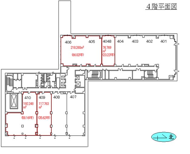
| 面積 | 89.24坪 295.01㎡ |
|---|---|
| 賃料 (共益費込) | 相談 |
| 預託金 | 相談 |
| 入居日 | 即日 |
| 物件名 | 四条SETビル |
|---|---|
| 所在地 |
京都市下京区
四条通柳馬場西入立売中之町
99
MAP
|
| 交通 |
京都市烏丸線
四条駅
徒歩4分
阪急電鉄京都線
烏丸駅
徒歩4分
阪急電鉄京都線
京都河原町駅
徒歩6分
|
| 竣工年月 | 1992年9月 |
| リニューアル | --- |
| 構造・規模 | 鉄骨鉄筋コンクリート(SRC造) 地上:8階、地下:1階 |
| 基準階面積(坪) | 338.73坪 |
| 天井高 | 2500mm |
| 空調 | セントラル |
| エレベーター | 3 基 |
| 駐車場 | 20 台 |
| 耐震性能 | --- |
| 取引態様 | 媒介 |
1 / 10
google map
ハザードマップを見る
物件情報に関する表示ルールについては当サイトのご利用規約をお読みください。
ご利用規約CONTACT US お問い合わせ
オフィスをお探しのみなさま
掲載中の物件以外にも、多数物件を取り扱っております。お電話またはお問い合わせフォームからお気軽にお問い合わせください。



