FLOOR INFORMATION
日進高松ビル 8階
| 面積 | 41.61坪 137.56㎡ |
|---|---|
| 賃料 (共益費込) | 相談 |
| 預託金 | 相談 |
| 入居日 | 2026年7月 |
| 物件名 | 日進高松ビル |
|---|---|
| 所在地 |
高松市
寿町1丁目
3-2
MAP
|
| 交通 |
高徳線
高松駅
徒歩3分
高松琴平電鉄琴平線
高松築港駅
徒歩3分
|
| 竣工年月 | 1958年3月 |
| リニューアル | 2003年6月 |
| 構造・規模 | 鉄骨鉄筋コンクリート(SRC造) 地上:9階、地下:1階 |
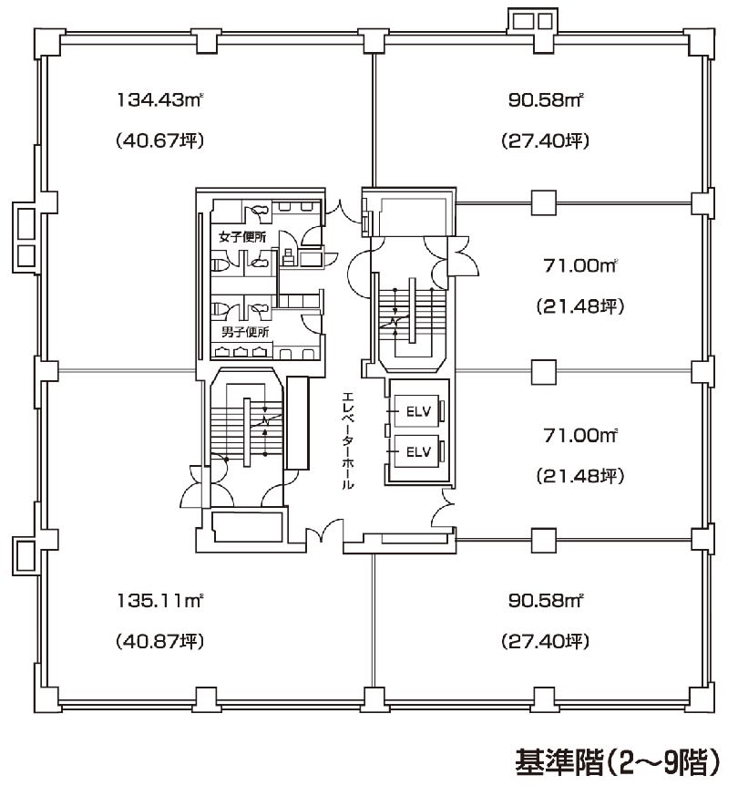
| 基準階面積(坪) | 179.29坪 |
| 天井高 | --- |
| 空調 | 個別タイプ |
| エレベーター | 2 基 |
| 駐車場 | 68 台 |
| 耐震性能 | --- |
| 取引態様 | 媒介 |
1 / 10
google map
ハザードマップを見る
物件情報に関する表示ルールについては当サイトのご利用規約をお読みください。
ご利用規約CONTACT US お問い合わせ
オフィスをお探しのみなさま
掲載中の物件以外にも、多数物件を取り扱っております。お電話またはお問い合わせフォームからお気軽にお問い合わせください。



