1. トップ
  2. エリアから探す
  3. 福岡
  4. 福岡市
  5. 福岡市博多区
  6. (仮称)S-GATE博多駅東計画

PROPERTY INFORMATION

お問い合わせ

(仮称)S-GATE博多駅東計画

物件の基本情報
物件名 (仮称)S-GATE博多駅東計画
所在地 MAP
交通
竣工年月 2026年1月
リニューアル ---
構造・規模 鉄骨(S造)
地上:8階
基準階面積(坪) 203.96坪
天井高 2700mm
空調 個別タイプ
エレベーター 有り
駐車場 12 台
耐震性能 ---
取引態様 媒介

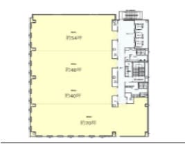
フロア情報

物件情報に関する表示ルールについては当サイトのご利用規約をお読みください。

ご利用規約

CONTACT US お問い合わせ

オフィスをお探しのみなさま

掲載中の物件以外にも、多数物件を取り扱っております。お電話またはお問い合わせフォームからお気軽にお問い合わせください。

三菱地所リアルエステートサービス株式会社
ビル営業部

お問い合わせはお電話でも承ります。
お気軽にお問い合わせください。

受付時間 9:30 〜 17:30(平日)