FLOOR INFORMATION
京阪松戸ビル 1階
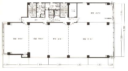
| 面積 | 111.31坪 367.96㎡ |
|---|---|
| 賃料 (共益費込) | 相談 |
| 預託金 | 12 ヶ月 |
| 入居日 | 即日 |
| 物件名 | 京阪松戸ビル |
|---|---|
| 所在地 |
松戸
1281-29
MAP
|
| 交通 |
常磐線
松戸駅
徒歩4分
徒歩4分
|
| 竣工年月 | 1984年9月 |
| リニューアル | --- |
| 構造・規模 | 鉄筋コンクリート(RC造) 地上:5階、地下:1階 |
| 基準階面積(坪) | 166.9坪 |
| 天井高 | 2500mm |
| 空調 | 個別タイプ |
| エレベーター | 1 基 |
| 駐車場 | 12 台 |
| 耐震性能 | --- |
| 取引態様 | 媒介 |
1 / 10
google map
ハザードマップを見る
物件情報に関する表示ルールについては当サイトのご利用規約をお読みください。
ご利用規約CONTACT US お問い合わせ
オフィスをお探しのみなさま
掲載中の物件以外にも、多数物件を取り扱っております。お電話またはお問い合わせフォームからお気軽にお問い合わせください。



