FLOOR INFORMATION
KONKOビル 5階
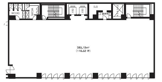
| 面積 | 116.52坪 385.19㎡ |
|---|---|
| 賃料 (共益費込) | 相談 |
| 預託金 | 相談 |
| 入居日 | 2026年6月 |
| 物件名 | KONKOビル |
|---|---|
| 所在地 |
1-1-16
MAP
|
| 交通 |
徒歩1分
徒歩1分
徒歩1分
徒歩1分
徒歩1分
|
| 竣工年月 | 1993年5月 |
| リニューアル | --- |
| 構造・規模 | 地上:9階、地下:2階 |
| 基準階面積(坪) | --- |
| 天井高 | 2550mm |
| 空調 | 個別タイプ |
| エレベーター | 2 基 |
| 駐車場 | 1 台 |
| 耐震性能 | --- |
| 取引態様 | 媒介 |
1 / 10
google map
ハザードマップを見る
物件情報に関する表示ルールについては当サイトのご利用規約をお読みください。
ご利用規約CONTACT US お問い合わせ
オフィスをお探しのみなさま
掲載中の物件以外にも、多数物件を取り扱っております。お電話またはお問い合わせフォームからお気軽にお問い合わせください。



