FLOOR INFORMATION
DKサンビル 2階
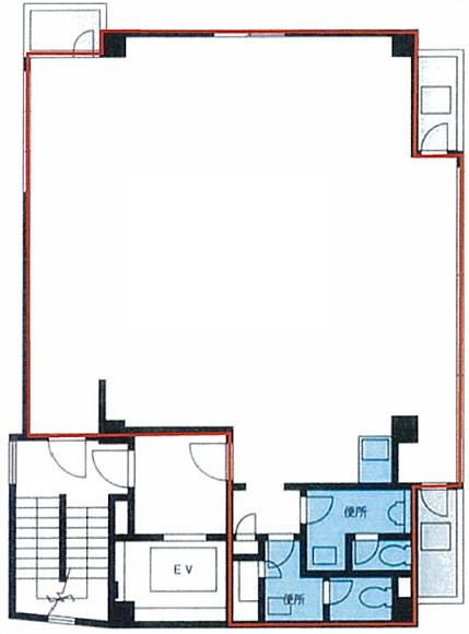
| 面積 | 31.5坪 104.13㎡ | 
|---|---|
| 賃料 (共益費込) | 598,500 円 19,000 円/坪 | 
| 預託金 | 10 ヶ月 | 
| 入居日 | 2026年3月下旬 | 
| 物件名 | DKサンビル | 
|---|---|
| 所在地 | 
                  
                                      
                                                        
                                                                          4丁目
                                    2-17
                MAP | 
| 交通 | 
                                          
                       
                      
                       
                                                                徒歩3分
                                       
                                          
                       
                      
                       
                                                                徒歩4分
                                       
                                          
                       
                      
                       
                                                                徒歩4分
                                       | 
| 竣工年月 | 1983年5月 | 
| リニューアル | --- | 
| 構造・規模 | 鉄骨鉄筋コンクリート(SRC造) 地上:8階 | 
| 基準階面積(坪) | --- | 
| 天井高 | --- | 
| 空調 | 個別タイプ | 
| エレベーター | 1 基 | 
| 駐車場 | 有り | 
| 耐震性能 | --- | 
| 取引態様 | 媒介 | 
1 / 10
google map
        ハザードマップを見る
      物件情報に関する表示ルールについては当サイトのご利用規約をお読みください。
ご利用規約CONTACT US お問い合わせ
オフィスをお探しのみなさま
 
        掲載中の物件以外にも、多数物件を取り扱っております。お電話またはお問い合わせフォームからお気軽にお問い合わせください。
 
      


