FLOOR INFORMATION
ZENNO筑紫通りビル 7階
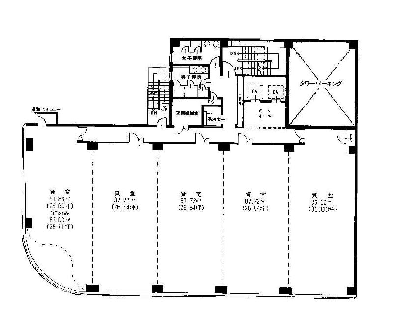
| 面積 | 56.13坪 185.55㎡ | 
|---|---|
| 賃料 (共益費込) | 相談 | 
| 預託金 | 12 ヶ月 | 
| 入居日 | 2026年3月 | 
| 物件名 | ZENNO筑紫通りビル | 
|---|---|
| 所在地 | 
                  
                                      
                                                        
                                                                          博多駅東3丁目
                                    1-1
                MAP | 
| 交通 | 
                                          
                       
                      
                       
                                                                徒歩9分
                                       
                                          
                       
                      
                       
                                                                徒歩13分
                                       
                                          
                       
                      駅
                       
                                                              徒歩19分
                                       | 
| 竣工年月 | 1989年8月 | 
| リニューアル | --- | 
| 構造・規模 | 鉄骨(S造) 地上:8階、地下:2階 | 
| 基準階面積(坪) | 139坪 | 
| 天井高 | 2600mm | 
| 空調 | 個別タイプ | 
| エレベーター | 2 基 | 
| 駐車場 | 有り | 
| 耐震性能 | --- | 
| 取引態様 | 媒介 | 
1 / 10
google map
        ハザードマップを見る
      物件情報に関する表示ルールについては当サイトのご利用規約をお読みください。
ご利用規約CONTACT US お問い合わせ
オフィスをお探しのみなさま
 
        掲載中の物件以外にも、多数物件を取り扱っております。お電話またはお問い合わせフォームからお気軽にお問い合わせください。
 
       
                  


