FLOOR INFORMATION
新宿野村ビル 41階
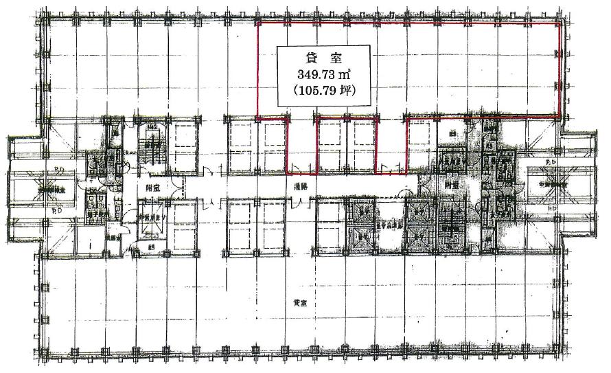
| 面積 | 386.73坪 1278.45㎡ | 
|---|---|
| 賃料 (共益費込) | 相談 | 
| 預託金 | 相談 | 
| 入居日 | 2027年2月 | 
| 物件名 | 新宿野村ビル | 
|---|---|
| 所在地 | 
                 
                  
                                      
                                                        
                                                                          1丁目
                                    26-2
                 
                MAP
               | 
            
| 交通 | 
                                   
                                          
                       
                      
                       
                                                                徒歩6分
                                       
                                  
                                          
                       
                      
                       
                                                                徒歩6分
                                       
                                  
                                          
                       
                      
                       
                                                                徒歩6分
                                       
                                  
                                          
                       
                      
                       
                                                                徒歩4分
                                       
                                  
                                          
                       
                      
                       
                                                                徒歩4分
                                       
                                  
                                          
                       
                      
                       
                                                                徒歩6分
                                       
                               | 
            
| 竣工年月 | 1978年6月 | 
| リニューアル | 2006年10月 | 
| 構造・規模 | 鉄骨(S造) 鉄筋コンクリート(RC造) 鉄骨鉄筋コンクリート(SRC造) 地上:50階、地下:5階  | 
            
| 基準階面積(坪) | 381.86坪 | 
| 天井高 | 2525mm | 
| 空調 | セントラル | 
| エレベーター | 24 基 | 
| 駐車場 | 330 台 | 
| 耐震性能 | --- | 
| 取引態様 | 媒介 | 
1 / 10
google map
        ハザードマップを見る
      物件情報に関する表示ルールについては当サイトのご利用規約をお読みください。
ご利用規約CONTACT US お問い合わせ
オフィスをお探しのみなさま
        掲載中の物件以外にも、多数物件を取り扱っております。お電話またはお問い合わせフォームからお気軽にお問い合わせください。



