FLOOR INFORMATION
SWTビル 7階
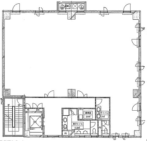
| 面積 | 58.36坪 192.94㎡ |
|---|---|
| 賃料 (共益費込) | 相談 |
| 預託金 | 12 ヶ月 |
| 入居日 | 2026年4月中旬 |
| 物件名 | SWTビル |
|---|---|
| 所在地 |
3丁目
15-9
MAP
|
| 交通 |
徒歩5分
徒歩5分
徒歩9分
徒歩9分
|
| 竣工年月 | 2001年12月 |
| リニューアル | 2009年6月 |
| 構造・規模 | 鉄骨鉄筋コンクリート(SRC造) 地上:8階 |
| 基準階面積(坪) | 58.36坪 |
| 天井高 | 2600mm |
| 空調 | 個別タイプ |
| エレベーター | 1 基 |
| 駐車場 | --- |
| 耐震性能 | --- |
| 取引態様 | 貸主 |
1 / 10
google map
ハザードマップを見る
物件情報に関する表示ルールについては当サイトのご利用規約をお読みください。
ご利用規約CONTACT US お問い合わせ
オフィスをお探しのみなさま
掲載中の物件以外にも、多数物件を取り扱っております。お電話またはお問い合わせフォームからお気軽にお問い合わせください。



